Ascott Parc Event Centre, nestled amidst Vaughan’s serene gardens and conservation lands.

Elevate your celebrations at Skyview, where open skies and sweeping vistas create a setting of breathtaking beauty. Bathed in natural light by day and transformed by golden sunsets and a soft twilight glow by evening, this refined space offers an atmosphere that feels both expansive and intimately enchanting. With its airy elegance and seamless blend of modern design and natural surroundings, Skyview sets the stage for moments that feel truly extraordinary.

Perfect for weddings, receptions, and unforgettable gatherings, Skyview invites you to celebrate beneath a canopy of endless sky and shimmering stars. Here, every detail comes together in harmony, creating an experience that feels effortlessly magical — where your most cherished moments rise to something truly unforgettable.

Hall Dimensions and Specs

📏

Dimensions

55'X94'

📐

Sq Ft

5170

🌤️

Ceiling Height

15'

🍽️

Banquet

290

🥂

Reception

300

🎭

Theatre

350

🏫

Classroom

250

👔

Boardroom

190

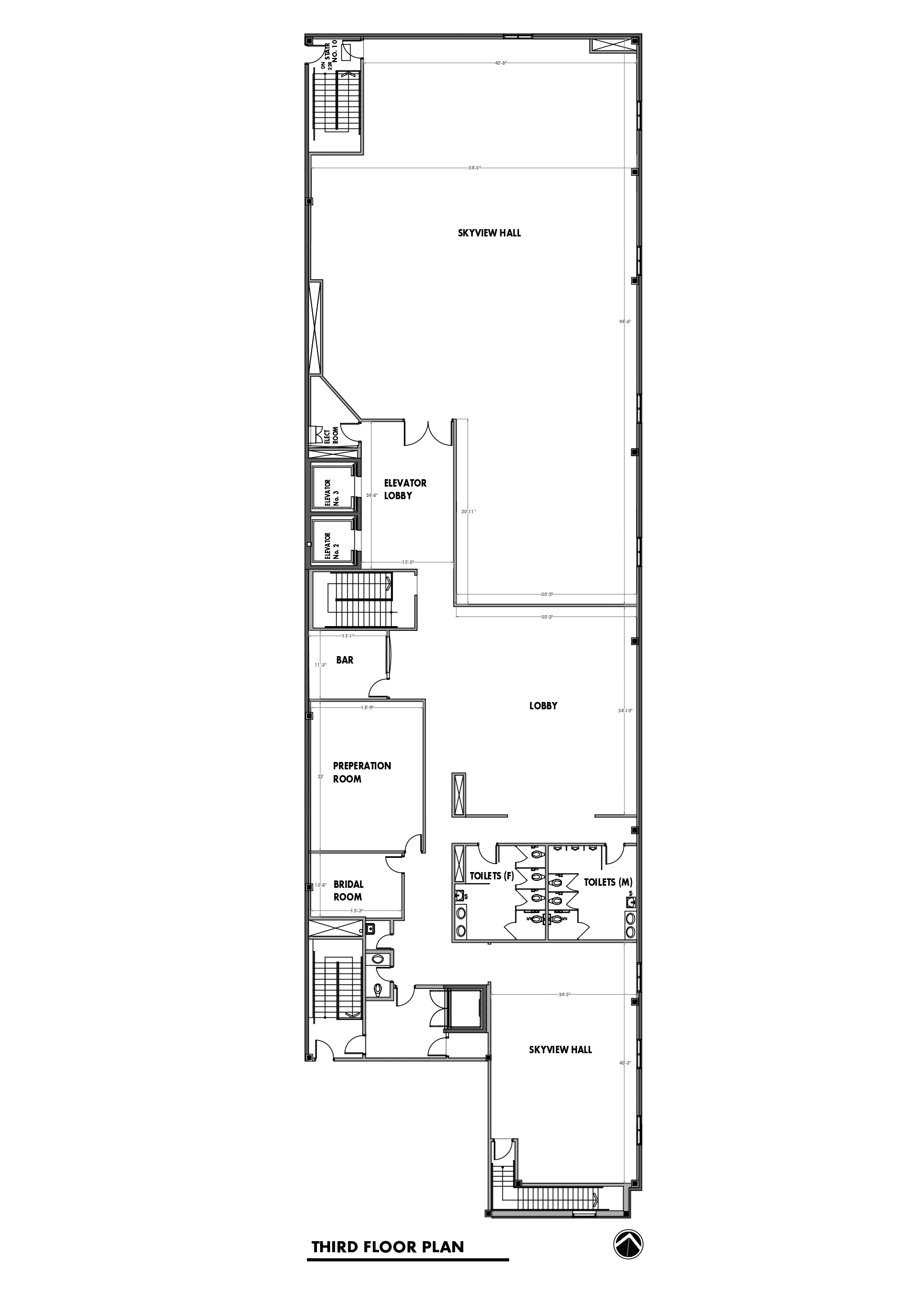
Skyview Floor plan

Frequently Asked Questions (FAQ)

Skyview Hall offers a balanced scale and open layout, making it suitable for weddings, receptions, conferences, and formal celebrations.

Skyview Hall can host up to 290 guests, depending on the chosen event layout.

Yes. The space supports presentations, speeches, and structured programming with coordinated layouts.